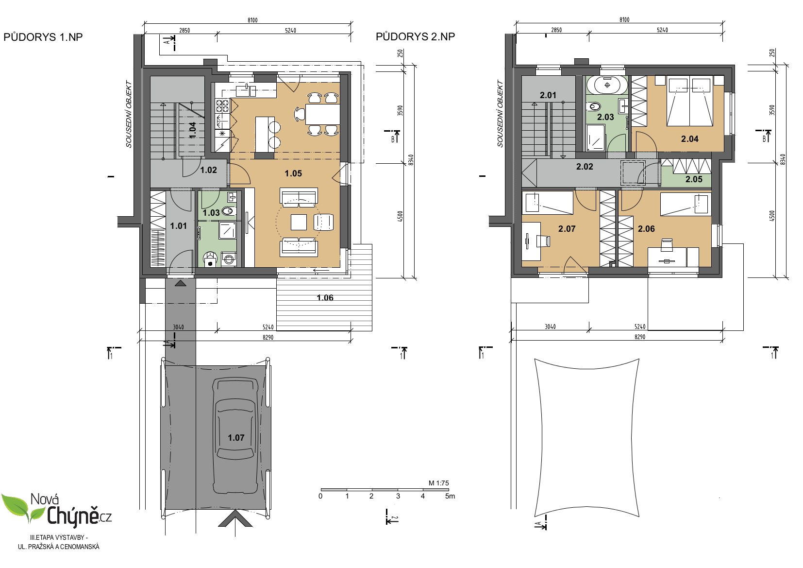
| Č.M. | MÍSTNOST | PLOCHA (m2) |
| 1.01 | ZÁDVEŘÍ + ŠATNA | 5,47 |
| 1.02 | CHODBA | 3,42 |
| 1.03 | WC + TECH.MÍSTNOST | 4,76 |
| 1.04 | SPÍŽ | 1,87 |
| 1.05 | OBÝVACÍ POKOJ S KK | 32,63 |
| CELKEM | 48,15 m² | |
| 1.06 | TERASA | 8,90 |
| Č.M. | MÍSTNOST | PLOCHA (m2) |
| 2.01 | SCHODIŠTĚ | 6,91 |
| 2.02 | CHODBA | 6,21 |
| 2.03 | KOUPELNA | 5,47 |
| 2.04 | LOŽNICE | 10,83 |
| 2.05 | KOMORA | 2,32 |
| 2.06 | DĚTSKÝ POKOJ | 10,99 |
| 2.07 | DĚTSKÝ POKOJ | 11,41 |
| CELKEM | 54,14 m² |
NEJEDNÁ se tedy o prodej několika domů na jednom pozemku s dvěma a více bytovými jednotkami a NENÍ potřeba vytvářet SVJ !!!




